Typ nieruchomości
Grupa portali: Szukam-Inwestora.com Szukam-Nieruchomosci.com Invest-Poland.com
Szukam-Nieruchomości.com Szukam-Nieruchomości.com

Sprzedam dom - styl dworek na działalność agroturystyczną

kujawsko-pomorskie, Złotoria

Opis nieruchomości


Atrakcyjny dom zlokalizowany w Grabowcu, w spokojnej okolicy k. Torunia.
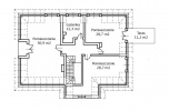
Dom 2-kondygnacyjny o pow. użytkowej 220 m2, całkowitej 280 m2. Ciekawe rozwiązania i niewymuszona aranżacja wnętrz czynią dom funkcjonalnym , przytulnym , z dobrą aurą. Z okien widok na pobliski las, łąki. Na działce znajduje się staw z wyspą i mostkami. Parter domu obejmuje 3 wygodne sypialnie, dużą kuchnię, łazienkę, otwarty salon z jadalnią -40m2. Ogrzewanie podłogowe zasilane pompą ciepła Piętro domu w stanie surowym umożliwia adaptację pod potrzeby przyszłych mieszkańców np. działalność agroturystyczna. Działka 0,5ha
Sugerowane dokupienie sasiedniej działki o powierzchni 3000m2 z budynkiem gospodarczym, który mozna zaadaptowac na dowolebe cele:
- budynek mieszkalny np dla pracownika
- biuro
- gabinet
- magazyn
- pracownię
- 3 stanowiskowy garaż z warsztatem zasilanym siłą

Podobne oferty


Sprzedam budynek handlowo-usługowy
sprzedam

Sprzedam budynek handlowo-usługowy

usługowe: kujawsko-pomorskie , Brodnica

Polecam jako inwestycję atrakcyjną nową nieruchomość z lokalami handlowo-usługowymi oraz mieszkalnymi wraz z wyremontowaną kamienicą. 10 lokali użytko...

sprzedam budynekbudynek handlowybudynek usługowy

4 500 000 zł 1 500 m²
aktualizacja: 21.02.2026
Atrakcyjny fitness club siłownia w Bielsku Podlaskim - sprzedam lub odstąpię
sprzedam

Atrakcyjny fitness club siłownia w Bielsku Podlaskim - sprze...

usługowe: podlaskie , Bielsk Podlaski

W związku z przeniesieniem uwagi na inne działania firmy, sprzedam kompletne wyposażenie nowoczesnego i przestronnego fitness klubu w Bielsku Podlaski...

siłownia na sprzedażfitness klubsprzedam siłowniesprzedam fitness klubsiłowniasprzedam biznes fitness

489 540 zł 1 200 m²
aktualizacja: 13.04.2026
Klinika z częścią mieszkalną na sprzedaż
sprzedam

Klinika z częścią mieszkalną na sprzedaż

usługowe: śląskie , Żory

Przedmiotem sprzedaży jest nieruchomość, która służy obecnie jako klinika oraz dom do zamieszkania. Budynek o łącznej powierzchni 506 metrów kwadrato...

klinikaprzychodnialekarzenieruchomość usługi medyczne

3 990 000 zł 506 m²
aktualizacja: 03.04.2026
Budynek usługowy z historią medyczną koło Żywca
sprzedam

Budynek usługowy z historią medyczną koło Żywca

usługowe: śląskie , Wieprz

Nieruchomość znajduje się w miejscowości Wieprz (gm. Radziechowy-Wieprz). Obiekt zlokalizowany bezpośrednio przy drodze łączącej Żywiec z południem p...

komercyjne śląsknieruchomość komercyjnanieruchomości komercyjneusługi medyczne

1 960 000 zł 595 m²
aktualizacja: 01.04.2026
Obiekt na mieszkania, usługi medyczne, hostel
sprzedam

Obiekt na mieszkania, usługi medyczne, hostel

usługowe: lubelskie , Wożuczyn

Na sprzedaż nieruchomość inwestycyjna z ogromnym potencjałem, położona w miejscowości Wożuczyn Cukrownia ( zwana sypialnią Zamościa), w bezpośredniej...

nieruchomość komercyjnabudynek komercyjnynieruchomości komercyjnenieruchomość inwestycyjna

650 000 zł 1 250 m²
aktualizacja: 19.03.2026
Grupa portali: Szukam-Inwestora.com Szukam-Nieruchomosci.com Invest-Poland.com
Partnerzy Business Angels Club MEDtube Eurobuild doinvest partners
© 2003-2026 doinvest partners